Services
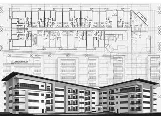
Accurate planning and efficient project coordination play a critical role in the success of modern architectural and construction projects. By leveraging professional BIM services, businesses can improve design accuracy, enhance collaboration, and reduce costly errors across every stage of development. Advanced architectural BIM services combined with reliable building information modelling services enable teams to visualize projects clearly, manage data effectively, and maintain consistency from concept through construction. With detailed architectural BIM modeling services, stakeholders gain better control over design intent, documentation, and execution, resulting in improved timelines, optimized costs, and higher-quality project outcomes.
Discover how our expert BIM services and architectural BIM services can add value to your projects. Visit - https://www.teslacad.com.au/architectural-bim-services.php







